
Der 18. Januar 2022 könnte eingehen in die Geschichte Wiesbadens – als der Tag, an dem seitens der Stadtspitze ein Versprechen gebrochen wurde, im gleichen Atemzug aber ein neues Versprechen gegeben wurde und dieses eine dermaßen starke Wirkung entfaltete, dass es das gebrochene Versprechen soweit in den Hintergrund rückte, dass der Weg für das Einlösen des neuen Versprechens freigemacht wurde. Objekt der Versprechen: das Walhalla. Überraschung des Versprechens: das A-Wort.
Das gebrochene Versprechen, frei nach Walter Ulbricht: „Niemand hat die Absicht, das Walhalla abzureißen.“ Das neue Versprechen: „Die Walhalla soll 2026 eröffnet werden, der Bau schon 2024 starten.“ So konkret – vielleicht liegt in dieser Verheißung schon ein Grund für die ausgelöste allgemeine Verzückung so mancher, die seit Jahren für die Walhalla-Rettung und -Wiederbelebung brennen – war eine greifbare Walhalla-Perspektive in den letzten Jahren oder gar Jahrzehnten noch nie.
„Vom ´man müsste mal´ zum Machen kommen“
Und so entschlossen, energisch und lebhaft wie nun bei diesem Thema wirkte OB Mende, der aller Voraussicht nach nicht gerade als Temperaments- und Dynamikbolzen in die Geschichte der Wiesbadener Oberbürgermeister eingehen wird, bisher selten. Sein Slogan lautet nun: „Endlich vom „man müsste mal“ zum Machen kommen!“.
Verkündet wurde der neueste Plan, oder eher der erste wirklich konkrete Plan, an jenem 18. Januar 2022 von Gert-Uwe Mende – Oberbürgermeister der Landeshauptstadt Wiesbaden und qua Amt Aufsichtsratsvorsitzender der seit knapp einem Jahr von der neuen Geschäftsführerin Bernadette Boot geführten städtischen WVV Holding. Dieser gehört die Walhalla-Immobilie, die konkrete Projektverantwortung liegt der der Stadtentwicklungsgesellschaft SEG mit ihrem Geschäftsführer Andreas Guntrum.
Klares Signal: Kulturbeirat entscheidet mit über Walhalla-Zukunft
Erstmals verkündet hat Mende seinen Walhalla-Plan bewusst im Rahmen einer digitalen öffentlichen Sitzung des Kulturbeirats – ein Zeichen des Respekts vor der Arbeit dieses ehrenamtlichen Gremiums, das sich seit seinem Start vor knapp vier Jahren immer wieder und immer weiter mit dem Thema Walhalla beschäftigt hat. Und ein nicht zu ignorierendes bemerkenswertes Signal: Über die Walhalla-Zukunft entscheiden nicht mehr länger nur ein paar wenige hinter verschlossenen Türen, sondern, so der OB: „Es ist auch wichtig, die Bauplanung in enger und ständiger Abstimmung mit dem Kulturbeirat zu gestalten.“ Mögliche Nutzung und Bau seien „eng aufeinander abzustimmen“. Und im weiteren Projektverlauf setzt der Rathauschef, der seit Juli 2019 im Amt ist und sich in Sachen Walhalla nicht für mögliche Versäumnisse und Fehlentwicklungen vor seiner Zeit in Mithaftung nehmen lassen will, auf ein „breites Beteiligungsverfahren“.
Der Zeitplan
Zunächst soll eine Steuerungsgruppe alle Beteiligten an einen Tisch holen und ab Jahresmitte 2022 durch ein Projektmanagement unterstützt werden. Die grundlegenden Abstimmungsprozesse müssten, so der OB, in diesem Jahr erfolgen mit dem Ziel: Baubeginn 2024 und Fertigstellung 2026, bei natürlich weiterhin laufender Bausicherung der maroden Teile.
Steuerungsgruppe statt Interessenbekundungsverfahren – Ort der Möglichkeiten statt Problem-Immobilie
Der Kulturbeirat, so Mende, habe „wegweisende Beschlüsse gefasst, um in einem iterativen Prozess zur Beantwortung zu kommen.“ Einig sind sich OB und Kulturbeirat in der Feststellung: Das ursprünglich vorgesehene europaweite Interessenbekundungsverfahren gilt als beendet, die Walhalla-Lösung soll in Wiesbaden, aus Wiesbaden heraus und für Wiesbaden gesucht werden. Die vielfältigen, flexiblen und modularen Nutzungsidee/n sollen nun durch eine Steuerungsgruppe respektive Projektbüro unter Einbindung unterschiedlicher gesellschaftlicher Gruppen und daraus folgend von einem Kurator:innen-Team entwickelt werden – im Geiste der Aussage des Kulturbeirat-Vorsitzenden Ernst Szebedits im November 2021, das Gremium wolle mit dem von ihm angestoßenen und realisierten Kreativprozess „nicht weniger leisten, als die Denkweise zum Walhalla grundsätzlich zu ändern – und zwar weg von einer Baustelle und Problem-Immobilie hin zu einem Ort der Möglichkeiten.“
Teil-Abriss als nun selbstverständliche Option


Und wie sieht er nun aus, der Plan? Anders als bisher gedacht und anders als bisher besprochen. So regelmäßig, wie seit Jahren rund um die Walhalla-Thematik Befürchtungen oder Gerüchte über mögliche Abriss-Absichten durch die Stadt waberten, so zuverlässig wurden diese von Verantwortlichen abgestritten und als abwegig abgetan. „Ein Abriss ist selbstverständlich keine Option und war es auch zu keinem Zeitpunkt.“, sagte etwa OB und WVV-Aufsichtsratsvorsitzender Gert-Uwe Mende im März 2021.

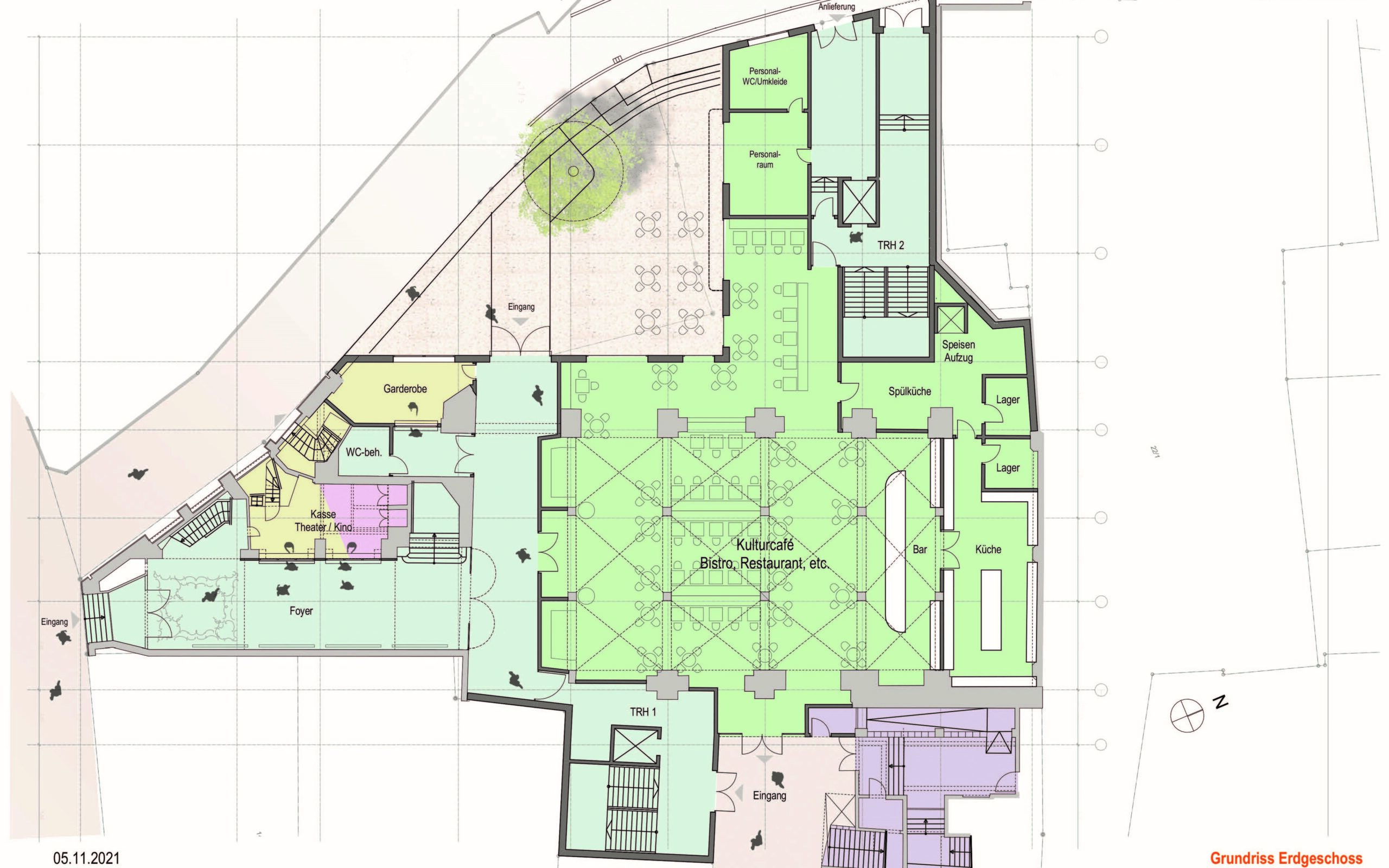
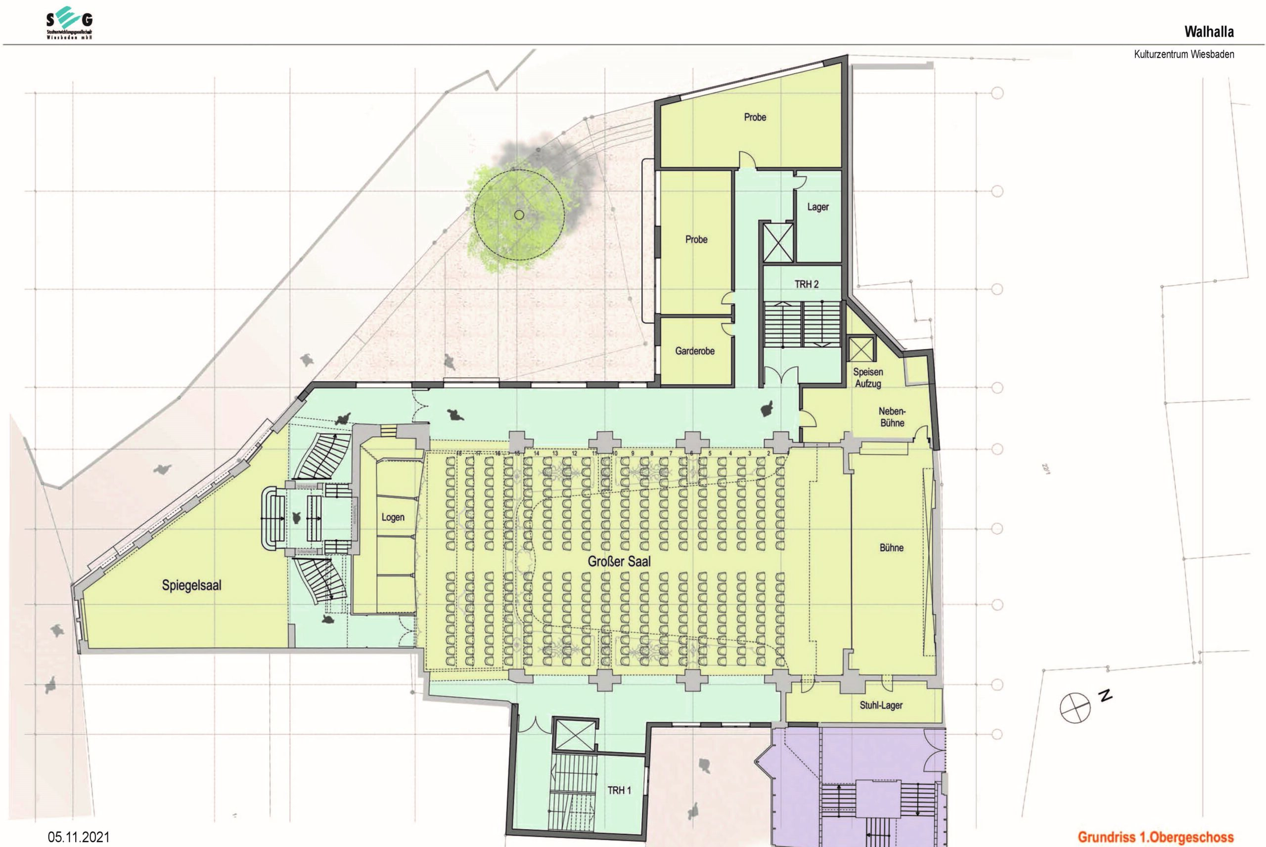
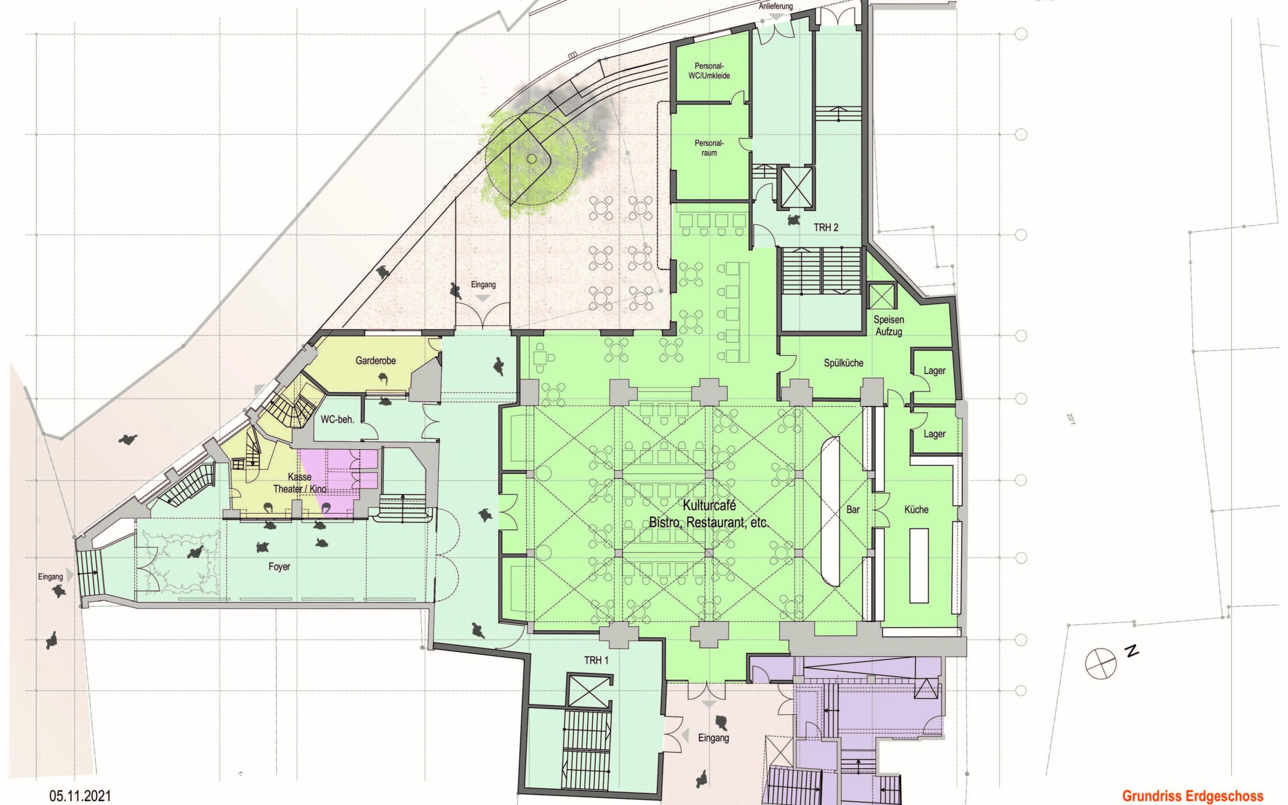
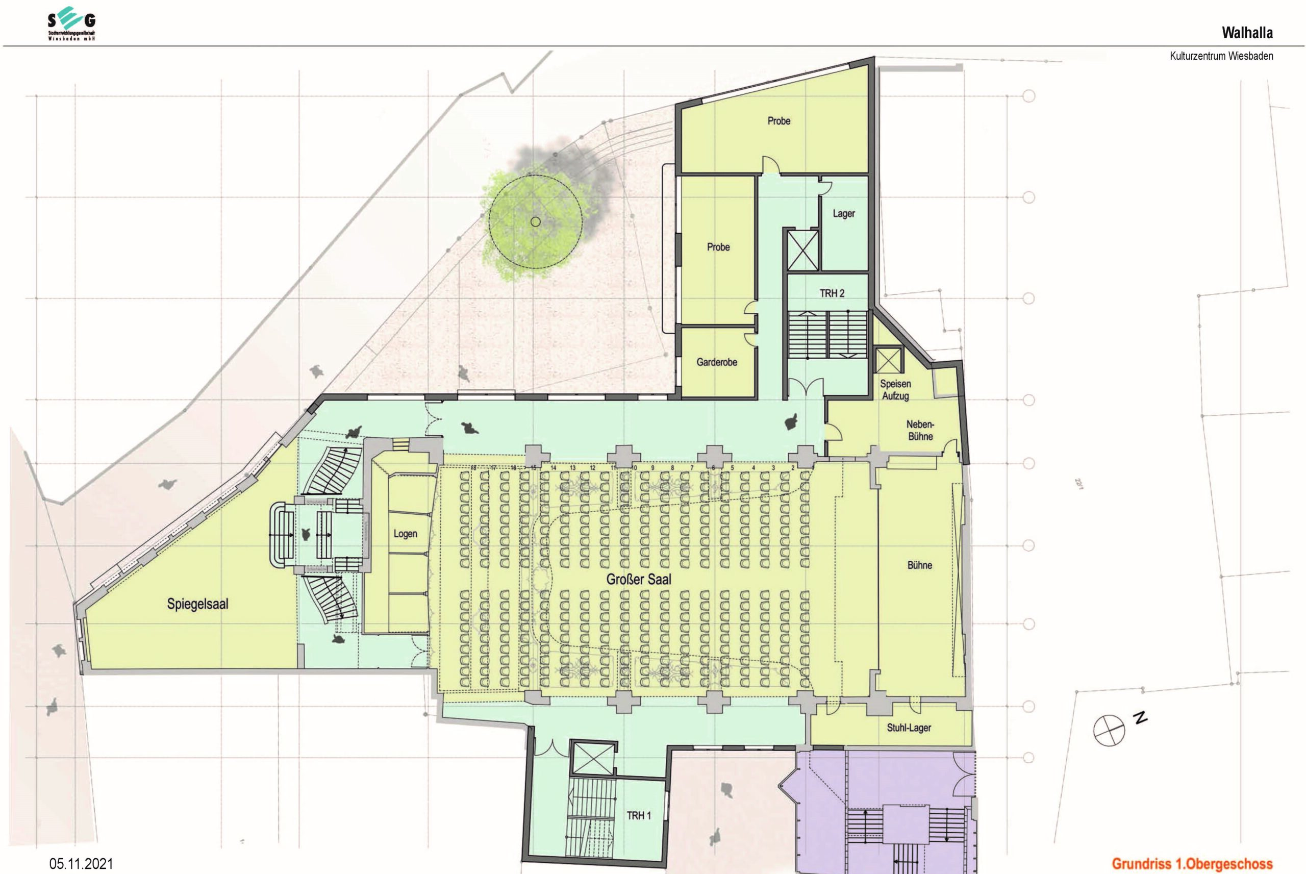
Das A-Wort meidet man auch jetzt, spricht von „niederlegen“, „entfernen“, „sich trennen von“, „Verzicht auf“ – und meint die Idee: Teil-Abriss des Walhalla-Komplexes. Und zwar durch: „Konservatorische Konzentration auf den Originalbestand von 1897/98“, also das denkmalgeschützte Kerngebäude mit Spiegelsaal, Großem Saal und im Untergeschoss (wo früher Bambi-Kino und Big Apple Club waren), Öffnung hin zu Kirchgasse und Mauritiusplatz, Abriss des Klinkerbau-Parts von 1910 entlang der Hochstättenstraße, auf dem dadurch freiwerdenden Areal Neugestaltung eines Platzes sowie Errichtung eines neuen Anbaus. Der drängende Baubeginn 2024 hat auch etwas mit Fristen für Fördergelder – vom Landesprogramm „Lebendige Zentren“ und vom Bundesprogramm „Nationale Projekte des Städtebaus“ – zu tun.
Neue Erzählung – Fokus auf „marode“ Anbauten

Was jetzt vorgelegt und erklärt wird, ist eine völlig neue Erzählung des Walhalla-„Problems“ als Basis für einen neuen Lösungsansatz. Weder wurde in den vergangenen Jahren groß thematisiert, dass das Walhalla aus einem historischen Kerngebäude und aus diversen Neben- und Anbauten besteht – ein verschachtelter Komplex, der sich so richtig erst bei genauem Hinsehen, am besten von oben, offenbart und erschließt.
Als besonders problematisch und renovierungsbedürftig wurden bislang in erster Linie Knackpunkte im Kerngebäude ins Feld geführt, nun ist es plötzlich das Nebengebäude entlang der Hochstättenstraße, das laut Aussage der Verantwortlichen bei WVV, SEG und dem Architekturbüro BGF + marode, morsch und nicht mehr tragbar und überhaupt in seiner Kleinteiligkeit, also Kleinräumigkeit, auch nicht wirklich nutzbar sein soll (zur dezenten Erinnerung: die „Walhalla Studios“-Gruppe hatte mit einem auf mehreren Säulen basierenden Nutzungskonzept durchaus Ideen, wie und wofür gerade auch kleine und vielleicht sogar schäbig erscheinende Räume genutzt werden könnten.) Nun also zum Abriss freigegeben – und Platz gemacht für … einen neu zu errichtenden Anbau und für einen Platz, wobei für beides zusammen nicht so richtig viel Platz sein dürfte wie es die ersten Visualisierungen, von denen eine schon wieder zurückgezogen wurde, suggerieren.
Auftrag hinter den Kulissen erteilt

Basis der jetzt vorlegten Vorschläge ist eine „Konzeptstudie“ des Wiesbadener Architekturbüros BGF+ – beauftragt von Hochbauamt (dessen neuer Leiter Andreas Rettig zuvor bei der WVV für das Walhalla mitverantwortlich war) und SEG, hinter den Kulissen parallel zu den intensiven öffentlichen Aktivitäten des Kulturbeirats. Und vorgelegt am 5. November 2021 und damit drei Wochen nach dem letzten Kreativ-Workshop des Kulturbeirats.
BGF+ ist das Architekturbüro, das 2014 in einem „Stegreif“-Wettbewerb zur künftigen Walhalla-Nutzung eine Siegeridee entwickelte, die den Wunsch-Betreiber, das bundesweit tätige GOP Varieté, gleich „mitbrachte“. Dieses Vorhaben scheiterte nach massiven Protesten, GOP zog sich seinerzeit als Interessent zurück. Aber all dies nur am Rande. Der Blick soll sich ja nach vorne, auf das Ziel, richten.
„Gemeinsames Ziel ist, ein Kulturzentrum in städtischer Trägerschaft mit hohem Belebungswert für das innerstädtische Quartier zu gründen“, betonte Kulturbeirat-Vorsitzender Ernst Szebedits: „Die akut nötigen Sanierungsmaßnahmen sind an diesem Ziel, das ausführlich in Form des Walhalla-Papiers und des Walhalla-Manifestes vom Kulturbeirat formuliert wurden, auszurichten.“ Wichtig sei dabei ein breites Raumangebot für eine möglichst flexible Nutzung.
Reaktionen zwischen „Bravo“ und „Vorsicht“
Trotz einigem, was mindestens hinterfragenswert ist, schallte dem OB aus dem Kulturbeirat für seinen Vorstoß ein vielstimmiges und in manchen Wortmeldungen gar euphorisches „Bravo“ entgegen, ebenso gab es aber auch mahnende „Vorsicht“ und „Moment mal“-Wortmeldungen in einer sehr langen, sehr lebhaften, sehr intensiven, sehr guten Debatte.
Ein Tenor der Zustimmenden war, dass das Wichtigste sei, dass es nun überhaupt endlich wirklich los und vorwärts gehe in dieser unendlichen Geschichte und dass genau jetzt der richtige Zeitpunkt dafür sei. Auch wurde angemerkt, dass – wie es auch der OB selbst betonte – das Einschlagen des einen Weges, der baulichen Sanierung, nicht bedeuten muss, also nicht bedeuten darf, dass all das, was der Kulturbeirat – zuletzt in zwei ganztägigen Workshops mit klugen kreativen Köpfen aus Wiesbaden und aus der ganzen Republik und darüber hinaus – an Impulsen und Ideen und Ansätzen erarbeitet und vorgelegt hat, für die Tonne war und in der weiteren Planung unter den Tisch fällt. Im Gegenteil – für das jetzt Vorgestellte sollen das vom Kulturbeirat erarbeitete „Walhalla-Papier“ ebenso wie das „Walhalla-Manifest“ grundsätzliche Prämisse sein.
Unmissverständliche Abmachung ist, dass die vorgesehen Steuerungsgruppe, unter maßgeblicher Mitwirkung des Kulturbeirats, ihre Arbeit aufnehmen wird, um bisher vage Ansätze in konkrete Vorschläge zu verwandeln. Klar ist – auch das wurde der OB nicht müde zu wiederholen – dass der nun vorgelegte Vorschlag alles andere als in (bröckelnden) Stein gemeißelt ist, dass dieser die Debatte nicht abschließen, sondern nochmal weiter anstoßen und das Projekt endlich zum Ziel führen soll.
Fragen nach künftiger Nutzung
Die skeptischen Stimmen in der Kulturbeirat-Diskussion (von denen einige trotz punktueller Bedenken doch in einer grundsätzlichen Zustimmung mündeten) mahnten beispielsweise an, nicht leichtfertig, oder „nonchalant“, weitere historische Bausubstanz in der Wiesbadener Innenstadt zu opfern. Oder sie stellten die Grundsatzfrage, ob und durch wen denn eigentlich tatsächlich Bedarf für ein Kulturzentrum Walhalla in der Innenstadt bestehe. Es habe sich ja schließlich noch niemand gemeldet, der es übernehmen und betreiben wolle, merkte zuletzt auch schon der AK Stadtkultur an.
Ergänzung – keine Konkurrenz
Diese Fragestellung übersieht oder ignoriert freilich die bisherige Entwicklung und den verabredeten Weg eines kuratorischen Konzepts – dass also ein:e Kurator:in oder ein Team sich um das künstlerische Profil des Hauses kümmern sollen, die sich dafür dann von sich aus auf die Suche nach künftigen Nutzer:innen begeben werden. Dass zum jetzigen Zeitpunkt niemand „Hier“ schreit, liegt in der Natur der Sache. Dass zu einem realistischen Zeitpunkt der Nutzungs- und Bespielungsbedarf auch unter kulturellen und gesellschaftlichen Akteuren unserer Stadt immens sein wird, davon darf getrost ausgegangen werden. Dass neue Kulturstätten, wie ein mögliches neues Walhalla, nicht zu Lasten bestehender finanziert werden dürfen, erklärte der Kulturbeirat-Vorsitzende Szebedits bei der Sitzung zum Prinzip: „Wiesbaden füllt mit dem neuen Angebot eine Leerstelle und führt kein Konkurrenzprodukt zu anderer lokaler Kultur ein.“
Fazit: Einiges spricht dafür, auf den Vorstoß des Oberbürgermeisters mit Optimismus und grundsätzlichem Wohlwollen zu reagieren und den Fokus und die Kraft und Energie und unbedingt auch (und auch im Sinne derer, die sich beteiligen) weitere Diskussionen, die an sich nichts schlechtes und keineswegs zu scheuen sind, sondern wertvoll sein und zu noch besseren Ergebnissen führen können, nun auf die Zukunft zu richten.
Diesen Versuch, der vielleicht endgültig der letzte sein wird, ist es wert.
Allerdings: Erfahrungen der Vergangenheit und einiges, was seitens Verantwortlicher bisher passiert oder eben gerade nicht passiert ist, sprechen ihrerseits dafür, hier niemandem einen Blankoscheck des Vertrauens auszustellen, sondern immer noch und immer wieder und weiter höchst aufmerksam zu sein, kritische und konstruktive Fragen zu stellen und wirkliche Transparenz und ehrliche Antworten einzufordern.
Prognose: Coup oder Flop? Im ungünstigsten Fall entpuppt sich über kurz oder lang doch wieder alles als heiße Luft und/oder das Projekt wird endgültig zum Opfer von Spielchen und Tricksereien und/oder Ideen werden so zerredet, dass am Ende doch wieder nichts heraus kommt.
Im besten Fall geht nun – endlich – alles einen (ergebnis)offenen, ehrlichen, transparenten, zielorientierten, visionären Gang. Dann könnte sich dieser vom OB vorgelegte – in Details noch dynamisch und lebhaft zu diskutierende – Vorschlag am Ende als Befreiungsschlag entpuppen. Dann könnte am Ende in Sachen Walhalla ein unglaublicher Dreisprung Wirklichkeit werden: Wortbruch-Abbruch-Durchbruch. Das wäre wahrlich historisch – und ein Meilenstein für die Wiesbadener Zukunft.
(Dirk Fellinghauer, Fotos/Bilder: BGF+, Kulturbeirat Dirk Fellinghauer, Erika Noack / www.wiesbaden-fotos.de – Transparenz: Der Verfasser dieser Beitrags ist gewähltes Mitglied des Kulturbeirats. Hier schreibt er in seiner Funktion als Journalist auf Basis öffentlicher und veröffentlichter Informationen und Aussagen.)
WAS DENKT IHR? KANN DAS NUN WAS WERDEN MIT DEM WALHALLA? WELCHES WALHALLA STELLT IHR EUCH VOR?







„…Dann könnte
sich dieser vom OB vorgelegte – in Details noch
dynamisch und lebhaft zu diskutierende –
Vorschlag am Ende als Befreiungsschlag
entpuppen. Dann könnte am Ende in Sachen Walhalla ein unglaublicher Dreisprung Wirklichkeit werden:
Wortbruch-Abbruch-Durchbruch. Das wäre wahrlich historisch – und ein Meilenstein für die Wiesbadener
Zukunft.“ (Dirk Fellinghauer )
Das wäre einmalig !!! – historisch !!! Sigrid Skoetz